Ponte Nelle Alpi - Appartamento
Rif : 805-13
Indirizzo :
Frazione CugnanPonte Nelle Alpi
Conforts :
- TerrazzoAbitabile
- Soggiorno
- garage
- cucina
- SalaPranzo
- Mansarda
Informazioni finanziarie :
| Prezzo | 109 000 € |
|---|
Dettagli :
| Condizioni della proprieta' | Buono |
|---|---|
| Numero di stanze | 5 |
| Numero di camere da letto | 2 |
| Numero di piani | 3 |
| Numero di bagni | 2 |
| Tipo di riscaldamento | autonomo |
| Classe | G |
| IPE | 299.48 kWh/m2anno |
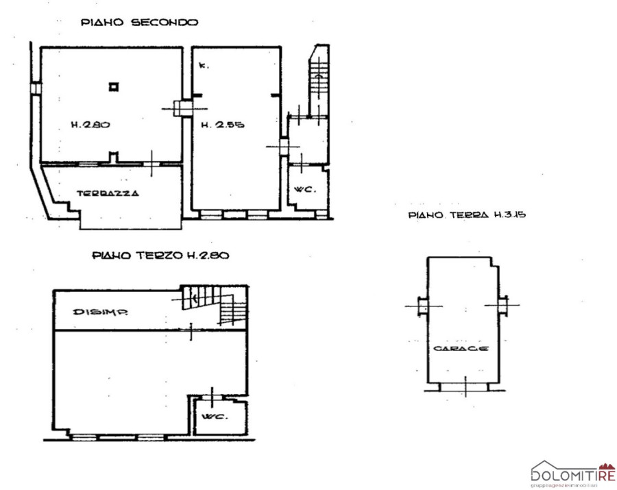
In località Col di Cugnan, a Ponte nelle Alpi, vendesi appartamento in palazzina di sole due unità, posto ai piani secondo e terzo, con scala interna di collegamento e composto da ingresso, cucina, soggiorno, un ampio locale ed un grande terrazzo al piano secondo e da disimpegno, camera molto ampia ed ulteriore bagno, al piano terzo.
Completa la proprietà un garage al piano terra

