Ponte Nelle Alpi - Appartamento
Rif : 804-13
Indirizzo :
RIONE SANTA CATERINAPonte Nelle Alpi
Conforts :
- TerrazzoAbitabile
- Soggiorno
- postoauto
- Soffitta
- cucina
Informazioni finanziarie :
| Prezzo | 111 000 € |
|---|
Dettagli :
| Condizioni della proprieta' | Buono |
|---|---|
| Numero di stanze | 5 |
| Numero di camere da letto | 3 |
| Numero di piani | 1 |
| Numero di bagni | 1 |
| Tipo di riscaldamento | nd |
| Classe | F |
| IPE | 280 kWh/m2anno |
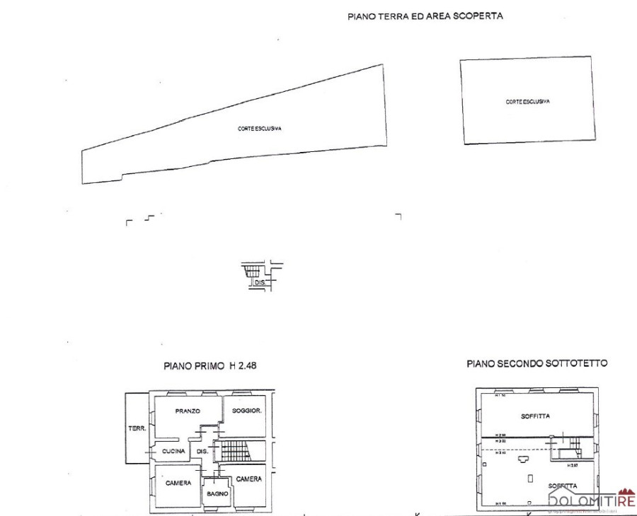
Località Santa Caterina - Appartamento al piano primo, in buone condizioni generali, già abitabile, in quanto oggetto di alcuni interventi di rinnovamento nel corso degli anni, composto da ingresso, cucina e zona pranzo-soggiorno con caminetto, tre camere, bagno con vasca e doccia, ampio terrazzo. Dispone di portoncino blindato e di infissi recenti con vetrocamera.
Della proprietà fanno parte una spaziosa soffitta, della superficie dell'appartamento, facilmente raggiungibile da una scala esclusiva e due comodi posti auto scoperti esclusivi. No spese condominiali

