Belluno - Appartamento
Rif : 815-13
Indirizzo :
via trenzBelluno
Conforts :
- Soggiorno
- postoauto
- cantina
- cucina
- SalaPranzo
Informazioni finanziarie :
| Prezzo | 169 000 € |
|---|
Dettagli :
| Condizioni della proprieta' | Da ristrutturare |
|---|---|
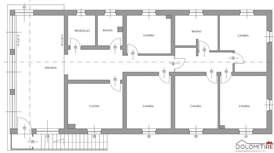
| Numero di stanze | 7 |
| Numero di camere da letto | 4 |
| Numero di piani | 1 |
| Numero di bagni | 2 |
| Tipo di riscaldamento | autonomo |
| Classe | G |
| IPE | 339.44 kWh/m2anno |
In frazione Castion, nella bellissima zona di Modolo, proponiamo in vendita un appartamento molto ampio, da ristrutturare, posto al primo piano di una costruzione di sole due unità. L'accesso avviene da una scala esterna esclusiva, dalla quale si accede alla grandissima zona giorno, con ampie vetrate panoramiche. Dal corridoio si arriva alla cucina, confinante con il soggiorno, alle quattro camere ed ai due bagni. Dall'area esterna, comune all'unità sottostante, si accede ad un giardino privato, pianeggiante, della superficie di oltre 600 mq. All'interno della proprietà comune si trovano due posti auto coperti esclusivi, con relativa corte ed un fabbricato grezzo, di circa 100 mq totali, su due livelli, ad uso deposito. Attualmente l'immobile è dotato di caldaia autonoma a gasolio.

