Ponte Nelle Alpi - Unifamiliare Casa singola
Rif : 822-13
Indirizzo :
VIA BELLUNOPonte Nelle Alpi
Conforts :
- TerrazzoAbitabile
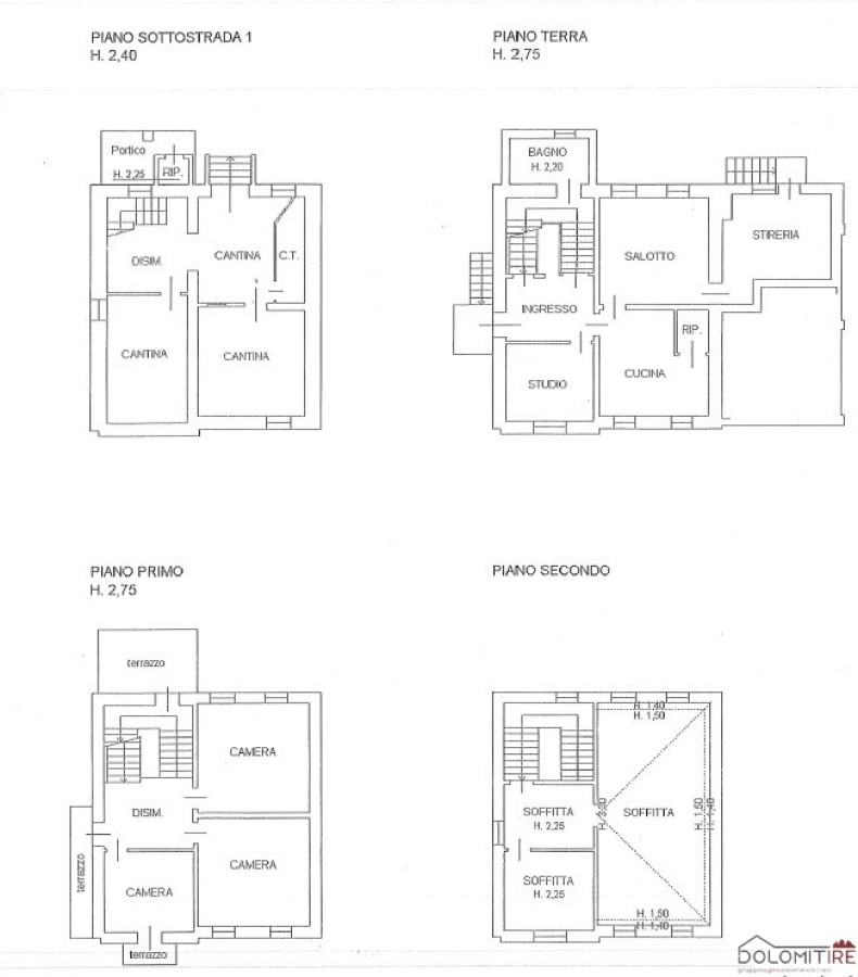
- Soggiorno
- Soffitta
- cantina
- garage
- cucina
- Ripostiglio
Informazioni finanziarie :
| Prezzo | 195 000 € |
|---|
Dettagli :
| Condizioni della proprieta' | Abitabile |
|---|---|
| Numero di stanze | 7 |
| Numero di camere da letto | 3 |
| Numero di piani | 3 |
| Numero di bagni | 1 |
| Tipo di riscaldamento | autonomo |
| Classe | G |
| IPE | 414.13 kWh/m2anno |
In frazione Polpet, a Ponte nelle Alpi, vendesi abitazione singola su tre piani con scala interna di collegamento, con corte esclusiva e garage, composta da ingresso, soggiorno, cucina, studio, stireria e bagno al piano terra, due camere matrimoniali, camera doppia, due terrazzi al piano secondo e soffitta.

